Ви вважаєте, що кухня-вітальня – це завжди компроміс? Можливо, ви просто ще не знаєте, як розкрити весь потенціал такого планування. Бо функціональний простір – це не випадковість, а результат продуманого дизайну.
7. Диван як перегородка: елегантне рішення для великої кімнати
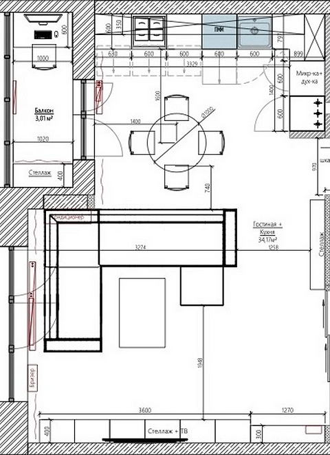
Площа кімнати: 34,2 кв. м
У великих приміщеннях масштабні меблі стають не просто елементом інтер’єру, а й потужним інструментом зонування. У цій кухні-вітальні дизайнер вдало розділила простір за допомогою великого кутового дивана. Його широка спинка візуально відокремлює зони, створюючи відчуття затишку та приватності.

За спинкою дивана розташувалася обідня група. Це створює зручне та функціональне планування, де кожна зона має своє чітке призначення. Таким чином, дві зони стають відокремленими, що робить простір більш комфортним для відпочинку та спілкування.

Дизайн: Катерина Жаркова. Фото: Роман Спірідонов. Стиль: Ірина Боград

Дизайн: Катерина Жаркова. Фото: Роман Спірідонов. Стиль: Ірина Боград
Текстури мають значення. Використання різних матеріалів, таких як дерево, метал і скло, додає інтер’єру глибини та інтересу. Не бійтеся експериментувати з поєднанням фактур, щоб створити унікальний і стильний простір.

Дизайн: Катерина Жаркова. Фото: Роман Спірідонов. Стиль: Ірина Боград
8. Міні-куточок для вітальні: як створити затишок на обмеженій площі
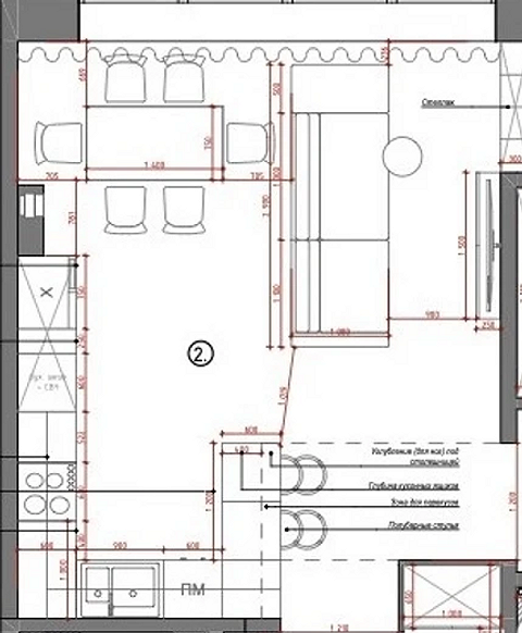
Площа кімнати: 17,3 кв. м
У невеликих приміщеннях зонування може стати справжнім викликом. Важливо визначити пріоритети та знайти баланс між розміром кухні та вітальні. У цьому випадку дизайнери вирішили віддати перевагу великій Г-подібній кухні.

Для вітальні виділили місце біля вікна. Там розмістили невеликий диванчик і мініатюрний столик. Біля стіни встановили шафу з каміном та обідній стіл. Все разом створює затишний куточок для відпочинку та релаксації.

Дизайн: Ольга Цурикова. Фото: Костянтин Пирьєв. Стиль: Катерина Шаповалова
Дзеркальні фасади – це чудовий спосіб візуально збільшити простір кухні та додати їй стилю. Цей прийом особливо ефективний у невеликих приміщеннях, де кожен сантиметр має значення.

Дизайн: Ольга Цурикова. Фото: Костянтин Пирьєв. Стиль: Катерина Шаповалова
Подбайте про хорошу вентиляцію. Це особливо важливо для кухні-вітальні, де запахи можуть швидко поширюватися по всій кімнаті. Встановлення потужної витяжки допоможе уникнути цієї проблеми.

Дизайн: Ольга Цурикова. Фото: Костянтин Пирьєв. Стиль: Катерина Шаповалова
Для виготовлення якісних витяжок часто використовують нержавіючу сталь з додаванням хрому та нікелю. Це забезпечує стійкість до корозії та довговічність приладу.
9. Обідній стіл біля вікна: світло та затишок в одному місці
Площа кімнати: 29,1 кв. м
Квадратну або Г-подібну кімнату можна поділити на три основні зони: кухня, вітальня та їдальня. Розташування обідньої групи біля вікна – це завжди виграшний варіант.

Диван можна розташувати спинкою до столу, створюючи візуальний бар’єр між зонами. Навпроти – кухонний гарнітур з барною стійкою, яка закриває кухню з одного боку. Це зручне та практичне рішення для організації простору.

Дизайн: Лаура Галінурова. Фото: Віра Деблік
Використовуйте точкові світильники, щоб виділити зони та створити затишну атмосферу, особливо ввечері. М’яке, розсіяне світло допоможе розслабитися після важкого дня.

Дизайн: Лаура Галінурова. Фото: Віра Деблік
Штори з легкої тканини пропускатимуть багато світла та додадуть кімнаті легкості. Це створить приємну та невимушену атмосферу.

Дизайн: Лаура Галінурова. Фото: Віра Деблік

Хм, треба буде подумати про диван як перегородку. Щойно шукав ідеї для зонування, дякую.
Не знаю, як у кого, а в мене диван зону не тримає… тільки кіт там спить. 🙄