Дизайн квартири 32 м² у ЖК «Хедлайнер»: Стиль та функціональність у кожному метрі

5 хв

Уявіть: м’яке світло, тиша і затишок.
Ваша квартира — це місце для відпочинку.
Як створити такий простір?
Поєднаємо стиль та комфорт!

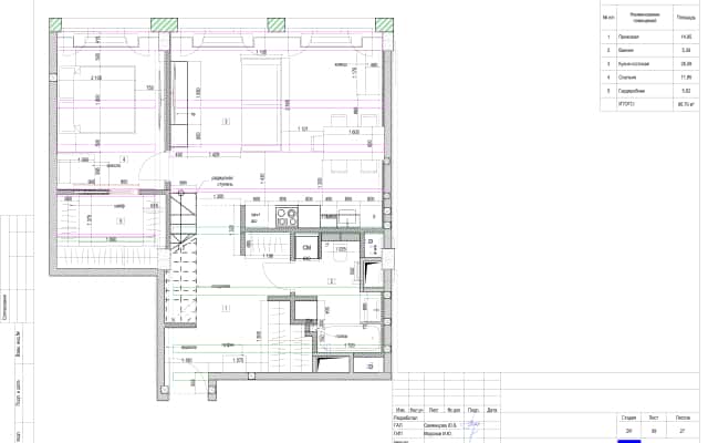
Сучасний дизайн маленької квартири 32 м² в ЖК «Хедлайнер»

Квартира 32 м² може бути стильною.
Важливо правильно використати простір.
Ось приклад дизайну в ЖК «Хедлайнер».

Сучасний дизайн квартири 32 м²: світлі тони, функціональні меблі та простір.
Використання світлої палітри візуально збільшує простір у цій маленькій квартирі.

Тут використали ліжко-подіум.
Він має місце для зберігання речей.
Це дуже зручно для маленької квартири.

Біла кухня виглядає сучасно.
Вона візуально збільшує простір.
Це чудовий вибір для невеликої квартири.

Інтер'єр сучасної квартири 32 м² у ЖК «Хедлайнер» з акцентом на деталях.
Ретельно підібрані елементи декору створюють неповторну атмосферу затишку.
Сучасний дизайн інтер'єру квартири 32 м² з продуманим освітленням та зонуванням.
Правильне освітлення підкреслює функціональні зони у невеликому просторі.
Перепланування маленької квартири 32 м²: сучасний дизайн для максимальної функціональності.
Ефективне перепланування дозволило максимально використати кожен метр площі.
Креативний дизайн квартири 32 м² з нестандартними рішеннями для зберігання речей.
Нестандартні рішення для зберігання звільняють простір та додають унікальності.
Інтер'єр квартири 32 м² в сучасному стилі з використанням натуральних матеріалів.
Використання дерева та інших натуральних матеріалів додає тепла інтер’єру.
Дизайн квартири 32 м²: вбудовані меблі, ефективне освітлення та сучасний стиль.
Вбудовані меблі допомагають зекономити простір та створити відчуття простору.

Функціональний подіум заощаджує місце.
Він ідеальний для маленької квартири.
У квартирі 32 м² в ЖК «Хедлайнер» він дуже вдалий.

Подіум розташований біля великого вікна.
Він має вбудовані ящики.
Там зручно зберігати речі.

На подіумі зробили спальне місце.
Спочатку змінили планування квартири.
Прибрали всі внутрішні перегородки.

Ванна кімната залишилась окремою.
Світлі стіни збільшують простір.
Глянцева стеля робить кімнату більшою.

Керамограніт на підлозі імітує мармур.
Підлога з підігрівом створює комфорт.
Кутова кухня дуже зручна.

Невелика барна стійка доповнює кухню.
Там можна випити кави чи пообідати.
Це зручне місце для швидкого перекусу.

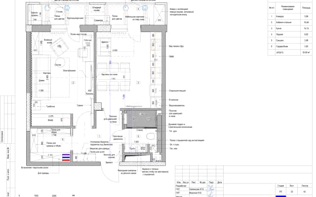
Сучасний проєкт квартири 84 м² в ЖК Shagal

Квартира для молодої пари в ЖК Shagal.
Ремонт враховує майбутнє поповнення сім’ї.
Потрібно було створити місця для роботи.

Сучасний дизайн квартири 32 м²: спальня-вітальня з меблями-трансформерами для комфорту.
Меблі-трансформери дозволяють легко змінювати функціональність кімнати.

Дизайн кухні з обідньою зоною дуже стильний.
Тут приємно готувати і відпочивати.
Все зроблено з любов’ю до деталей.

Подружжя проводить багато часу вдома.
Вони хотіли створити затишну атмосферу.
Комфорт був головним пріоритетом.

Дизайн інтер'єру квартири 32 м² у ЖК «Хедлайнер»: мінімалізм та функціональність.
Мінімалістичний дизайн створює відчуття порядку та простору в квартирі.
Маленька квартира з балконом: сучасний дизайн з зоною відпочинку на балконі.
Балкон перетворений на затишну зону для відпочинку та релаксації.
Сучасний дизайн інтер'єру квартири 32 м² у ЖК «Хедлайнер» з акцентом на мінімалізм.
Простий, але елегантний дизайн, що підкреслює відчуття простору в невеликій квартирі.
Функціональний інтер'єр квартири 32 м² у ЖК «Хедлайнер»: продумане планування для комфортного життя.
Кожен куток використовується максимально ефективно, створюючи затишну атмосферу.
Перепланування квартири 32 м² для оптимізації простору та створення функціональних зон.
Перепланування дозволило створити зручний та сучасний інтер’єр, незважаючи на невелику площу.
Маленька квартира з сучасним дизайном: використання світлих кольорів та мінімалістичних меблів.
Світлі тони візуально збільшують простір, а мінімалізм додає елегантності.

Кухню об’єднали з вітальнею.
Для оздоблення використали штукатурку.
Також використали паркетну дошку.

Це створило сучасний простір.
Він має елементи екостилю.
Додали смарагдові, кавові та оливкові акценти.

Обстановка виглядає спокійно.
Кабінет у майбутньому стане дитячою.
Робочу зону зробили на балконі.

Наші технологи помітили: для квартир з незвичайною формою, наприклад, з кутами, що відрізняються від прямих, ми в MZ Atelier пропонуємо виготовлення матраців на замовлення. Це дозволить максимально ефективно використати простір та створити унікальний дизайн.

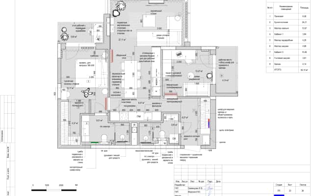
Квартира з мезоніном 89 м² в ЖК «Джаз»

Площа квартири в ЖК «Джаз» була 68 м².
Дизайнери збільшили її до 89 м².
Це зробили за рахунок високої стелі.

Елегантний дизайн інтер'єру квартири 32 м² у ЖК «Хедлайнер» з використанням сучасних матеріалів.
Використання якісних матеріалів підкреслює стиль та сучасність інтер'єру.

Вид на кухню та мезонін.
Це цікаве рішення для збільшення простору.
Мезонін додає квартирі унікальності.

В результаті перепланування з’явився мезонін.
Його розмістили над передпокоєм.
Також над санвузлом та кухнею.

Вбудовані меблі в дизайні маленької квартири для максимальної економії місця та функціональності.
Вбудовані меблі – ідеальне рішення для невеликих просторів, забезпечуючи комфорт та функціональність.
Сучасний інтер'єр квартири 32 м²: стильне поєднання кольорів та текстур для затишної атмосфери.
Гармонійне поєднання кольорів та текстур створює відчуття тепла та комфорту.
Ідеї перепланування маленької квартири 32 м² для створення затишного та функціонального житла.
Продумане перепланування дозволяє створити комфортний простір, незважаючи на обмежену площу.
Дизайн квартири 32 м² у сучасному стилі з акцентними кольорами та оригінальними деталями.
Яскраві акценти додають індивідуальності та стилю в інтер’єр невеликої квартири.
Інтер'єр квартири 32 м² у ЖК «Хедлайнер»: сучасний дизайн з ергономічним використанням простору.
Кожен елемент інтер’єру продуманий для максимальної зручності та функціональності.
Сучасний дизайн маленької квартири 32 м² з функціональними меблями в ЖК «Хедлайнер».
Світлий інтер’єр з використанням компактних меблів для оптимізації простору.

Після монтажу мезоніну утворилась ніша.
Там встановили кухонний гарнітур.
Під час зонування врахували вікна.

У кожному сегменті є освітлення.
Під сходами зробили систему зберігання.
Це заощаджує місце у квартирі.

Ремонт квартири в стилі кантрі 53 м² в ЖК «Вдохновение»

Інтер’єр квартири в ЖК «Вдохновение».
Він відповідає потребам замовника.
Квартира для дорослого чоловіка.

Інтер'єр квартири 32 м² в ЖК «Хедлайнер» з акцентом на природні матеріали.
Використання дерева та каменю створює затишну атмосферу в невеликій квартирі.

Кабінет-спальня в невеликій квартирі.
Це функціональне рішення для економії місця.
Тут можна працювати і відпочивати.

Він планує використовувати її як офіс.
Там він буде зустрічатися з колегами.
Натуральні матеріали та прості форми.

Перепланування маленької квартири 32 м² для створення відкритого простору в ЖК «Хедлайнер».
Об’єднання кухні та вітальні візуально збільшує площу квартири.
Сучасний дизайн інтер'єру квартири 32 м² в ЖК «Хедлайнер» з мінімалістичним декором.
Прості лінії та функціональні рішення роблять інтер’єр стильним і практичним.
Дизайн квартири 32 м²: сучасні рішення для маленьких просторів в ЖК «Хедлайнер».
Ефективне використання кожного сантиметра в дизайні маленької квартири.
Інтер'єр квартири 32 м² в ЖК «Хедлайнер» з використанням світлих кольорів для візуального збільшення простору.
Білий колір та світлі відтінки візуально розширюють межі кімнати.
Сучасний дизайн квартири 32 м² з великою кількістю природного світла в ЖК «Хедлайнер».
Великі вікна забезпечують достатньо світла, що робить квартиру більш затишною.
Дизайн інтер'єру квартири 32 м² в ЖК «Хедлайнер» з акцентом на функціональне освітлення.
Правильно підібране освітлення допомагає зонувати простір та створювати потрібну атмосферу.

Яскраві акценти створюють атмосферу.
Обстановка поєднує класику та кантрі.
Все виглядає свіжо та сприяє спілкуванню.

Кабінет об’єднали зі спальнею.
На лоджії зробили міні-вітальню.
Кухня може бути гостьовою кімнатою.

Для затишку в кабінеті встановили камін.
Він додає тепла і комфорту.
Це створює приємну атмосферу.

Цікавий факт: дослідження показують, що правильно підібраний дизайн інтер’єру може підвищити продуктивність праці на 15% та покращити настрій на 20%!

Ательє MZ Atelier піклується про ваш сон.
Ми створюємо матраци за індивідуальними розмірами.
Враховуємо особливості вашого тіла.

Наші майстри допоможуть вам обрати ідеальний матрац.
Він подарує вам здоровий та комфортний сон.
Дозвольте собі розкіш якісного відпочинку.

FAQ

Вибирайте світлі кольори, використовуйте дзеркала та багатофункціональні меблі.
Натуральні матеріали, такі як дерево та камінь, створюють затишок.
5/5 - (2 голоси)
Дизайн квартири 32 м² у ЖК «Хедлайнер»: Стиль та функціональність у кожному метрі - 6 - MZ Atelier

Про автора: Matras Sommelier

Matras Sommelier – визнаний експерт у галузі сну та комфорту. З багаторічним досвідом роботи, він глибоко розуміється на впливі матраців та спальних систем на якість відпочинку. Випускник НТУУ КПІ, він присвятив свою кар'єру дослідженню та оптимізації умов для здорового сну. Його знання – запорука вашого комфортного пробудження.

8 думок про “Дизайн квартири 32 м² у ЖК «Хедлайнер»: Стиль та функціональність у кожному метрі

  1. Наталія каже:

    Функціональність понад усе. У таких малогабаритках кожен сантиметр має значення, і рішення з подіумом під ліжко – це справді must have. Цікаво, наскільки практична така кухня у реальному житті, чи вистачає місця для всього необхідного?!!

    • Сергій каже:

      Я згоден з Наталією, функціональність – це головне! Мені теж здається, що подіум – чудове рішення. А от щодо кухні, то теж цікаво, чи зручно там готувати щодня? Хотілося б почути від власників, як воно насправді.

  2. Олександр каже:

    32 метри? Серйозно? Та в мене в гаражі більше місця! Хоча, якщо там ліжко-подіум і біла кухня, може, хоч не буде відчуття, що живеш в шафі. Хоча, ні, все одно буде.

  3. Віктор каже:

    32 метри? Серйозно? В мене в гаражі більше місця. Хоча, якщо добре постаратися, можна і в телефонній будці жити “стильно”. Головне, щоб потім не виявилося, що “функціональність” – це спати в шафі.

    • Сергій каже:

      Вікторе, я вас розумію, теж спочатку скептично ставився до таких маленьких площ. Але зараз стільки крутих дизайнерських рішень, що навіть на 32 метрах можна створити затишне і функціональне житло. Головне – правильно організувати простір.

  4. Олександр каже:

    Хм, а ліжко-подіум – це геніально! Треба буде в свого старого майстра спитати, чи він таке зможе змайструвати. Давно вже думав, як ті всі речі розіпхати, щоб хоч трохи простору стало!!

  5. Олена каже:

    Прочитала і наче побувала там! Як же майстерно використано кожен сантиметр. Тепер мрію про такий же затишний куточок, де все під рукою і нічого зайвого. Надихає на зміни!

  6. Олександр каже:

    Клас! Ліжко-подіум – це геніально для таких малих площ. Треба буде собі щось подібне придумати, щоб нарешті позбутися захаращеного балкону. )

Залишити коментар до Олександр Скасувати коментар

Ваша e-mail адреса не оприлюднюватиметься. Обов’язкові поля позначені *