Відчуйте, як простір навколо вас наповнюється гармонією. Уявіть, як кожен кут вашого дому дихає елегантністю. Ця елегантність відображає ваш унікальний стиль. Сьогодні ми зануримося у світ елітного ремонту квартир. Ми розглянемо ціни, етапи та дизайн-проєкти 2026 року.

Цей інтер’єр демонструє розкіш та комфорт елітного ремонту з використанням якісних матеріалів.
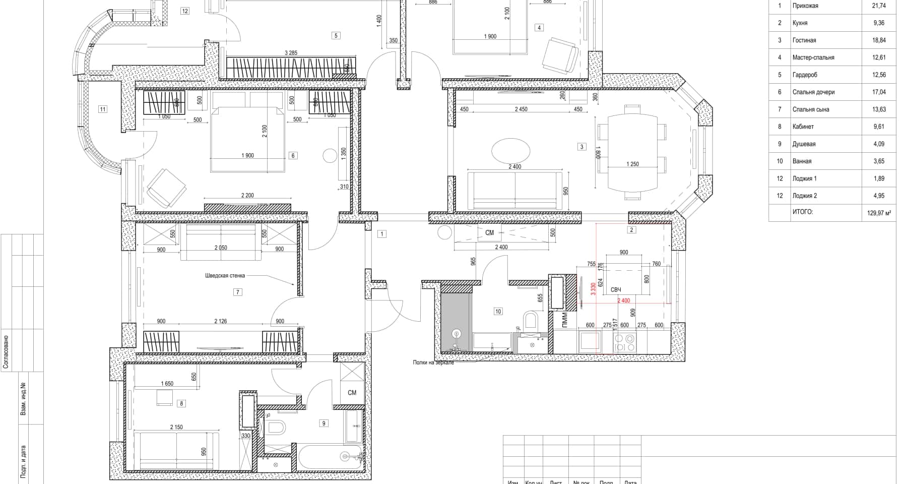
Елітний ремонт квартири – це створення унікального простору. Він має преміальну обробку та дизайнерські меблі. Це комплекс заходів, спрямованих на створення краси та функціональності.

Натуральне дерево та камінь підкреслюють вишуканість та елегантність цього елітного ремонту.
Вітальня елітної квартири після ремонту
Елітний ремонт виконується за індивідуальним проєктом. Команда висококваліфікованих фахівців працює над кожним етапом. Вони використовують матеріали преміум-класу та сучасні технології. Проєкт передбачає перепланування та авторський нагляд. Давайте розглянемо організацію процесу та терміни виконання робіт. У цій статті ви знайдете фото квартир з елітним дизайном від компанії «Віра-АртСтрой».
Скільки коштує елітний ремонт квартири в Києві?
Вартість ремонту можна дізнатися, переглянувши реальні об’єкти з портфоліо. Для кожного проєкту вказано бюджет, площу та терміни виконання робіт. Також є список виконаних робіт.

Відкрите планування збільшує простір та створює відчуття свободи в елітному інтер’єрі.
Ремонт квартир від «Віра-АртСтрой»
Актуальні ціни на ремонт квартир можна дізнатися на сторінці “Вартість ремонту”. Ціна елітного ремонту залежить від кількох факторів. До них належать метраж об’єкта, складність робіт та вартість матеріалів. Ціна також залежить від необхідності узгодження перепланування. Ви можете запросити попередній розрахунок кошторису у наших фахівців. Для цього надішліть заявку з сайту.
Чи потрібен дизайн-проєкт для елітного ремонту?

Світлі тони роблять простір візуально більшим та додають легкості елітному інтер’єру.
Спальня дочки після ремонту квартири

Сучасна кухня з вбудованою технікою – невід’ємна частина елітного ремонту квартири.
План розстановки меблів з дизайн-проєкту елітної квартири
Елітний ремонт неможливий без професійного дизайн-проєкту. Проєктування є необхідним етапом для створення індивідуального інтер’єру. Дизайн-проєкт дозволяє підібрати оптимальне планування. Він також визначає обсяг робіт та узгоджує перепланування. Проєкт допомагає підготувати кошторис та контролювати хід ремонту.
Ось декілька переваг наявності дизайн-проєкту:
- Ви зможете вибрати оптимальне планування. Дизайнери запропонують декілька варіантів. Ви оберете той, який вам найбільше подобається. Дизайн-проєкт включає креслення, ескізи та візуалізації.
- Проєкт визначить обсяг робіт. Він включить всі необхідні заходи. Це може бути заміна комунікацій або меблювання.
- Ви зможете узгодити перепланування. Без проєкту це неможливо.
- Ви підготуєте кошторис та розрахуєте потребу в матеріалах. Це допоможе вам укластися в бюджет.
- Проєкт складе план-графік робіт. Він вкаже точні терміни. Ви зможете контролювати хід ремонту.
Дизайн інтер’єру в подарунок!
Ми створюємо унікальні інтер’єри для успішних людей понад 28 років. Ми готові створити для вас такий інтер’єр безкоштовно. Це можливо, якщо ви будете робити ремонт з нами.
Ви можете замовити елітний дизайн та ремонт квартири в будь-якому стилі. В цьому випадку ви отримаєте дизайн-проєкт в подарунок. Його вартість буде повернена на фінальному етапі робіт.
Наші технологи радять починати з дизайн-проєкту. Він допоможе візуалізувати майбутній інтер’єр. Це дозволить уникнути помилок та зайвих витрат.
Етапи ремонту та оздоблення
Елітний ремонт квартир коштує від 25 000 грн за м². Він проводиться в кілька етапів. Загальна тривалість ремонту складає близько 6 місяців.
Підготовчий етап елітного ремонту – 2,5 місяці
- Знесення стін, демонтаж, вивіз сміття
- Укладання електричних кабелів
- Влаштування міжкімнатних перегородок
- Влаштування стяжки зі звукоізоляцією та армуванням
- Сантехнічні роботи
Проміжний етап елітного ремонту – 1,5 місяці
- Монтаж підвісної стелі
- Укладання проводів, влаштування підрозетників і розподільних коробок
- Встановлення підвіконь
- Проклеювання стін і стель армуючою сіткою
- Шпаклівка стін і стель
- Фарбування стін і стель (2 рази)
- Укладання керамічної плитки
- Влаштування декоративних ніш
- Укладання вологостійкої фанери
Завершальний етап елітного ремонту – 2 місяці
- Укладання штучного паркету, палубної дошки та ламінату
- Фінішне фарбування стін і стель
- Поклейка шпалер
- Влаштування плінтуса
- Встановлення дверей, замків, наличників
- Встановлення та підключення електротехнічних виробів
- Встановлення відеодомофона та відеокамери (за потреби)
- Встановлення декоративних виробів та аксесуарів
- Встановлення сантехобладнання
- Встановлення внутрішнього блоку кондиціонера
- Встановлення вбудованих шаф
- Прибирання приміщення

Мармур та сучасна сантехніка створюють атмосферу розкоші та комфорту у ванній кімнаті.
Оздоблення ТВ-зони з мармурового слебу
Уникайте поспіху при виборі матеріалів. Дешеві матеріали можуть швидко втратити свій вигляд. Вони можуть містити шкідливі речовини.
Чи знаєте ви, що правильно підібране освітлення може візуально збільшити простір? Воно також може створити затишну атмосферу.
Для створення ідеального простору важливо враховувати кожну деталь. Від вибору кольорів до розташування меблів. Все повинно гармоніювати та відображати ваш стиль.
Якщо у вас нестандартне планування, не хвилюйтеся. MZ Atelier виготовляє матраци будь-якої форми. Ми зробимо матрац для вашої трапецієвидної або круглої кімнати. Наші матраци забезпечать вам комфортний сон.
Подбайте про своє здоров’я. Вибирайте матраци з індивідуальним підбором шарів. MZ Atelier пропонує широкий вибір матеріалів. Ми допоможемо вам створити ідеальний матрац для вашої спини.
Не забувайте про розкіш. Наші елітні турецькі колекції Olympia та Artisan подарують вам незабутні відчуття. Вони виготовлені з найкращих матеріалів. Вони додадуть вашому дому вишуканості.

Елітний ремонт – це добре, але часто забувають про практичність. Спочатку треба думати про зручність, а потім вже про “вау-ефект” для гостей. Інакше жити в музеї не захочеться.!
Зміни в квартирі – це завжди крок у нове життя. Головне – знайти майстрів, які відчувають твій вайб і не бояться експериментів. Тоді й простір заграє по-іншому.
Елітний ремонт – це як персональний всесвіт у квартирі. Простір, де кожна деталь говорить про тебе. Надихнулась ідеями, треба подумати, як це адаптувати до власного дому.
Прочитала статтю і вже мрію про таку розкіш! Уявляю, як питиму ранкову каву у вітальні з натурального каменю… Хочеться вже зараз знайти дизайнерів і почати втілювати свою мрію в реальність! Ех, заживемо!
Прочитала і задумалась, а чи не час нарешті позбутися цієї радянської плитки у ванній? Завжди мріяла про щось вишуканіше, може, дійсно пора інвестувати в гармонію простору навколо? Натхнення додалось!