Перепланування 2026: як створити ідеальний простір законно

8 хв

Уявіть: тихий вечір, м’яке світло ллється крізь вікна. Ідеальний простір, де кожна річ на своєму місці. Де гармонія панує у кожному куточку. Чи можливо створити такий простір у вашій квартирі? Так, якщо підійти до перепланування з розумом.

Усі уявляють собі перепланування як хаотичний процес зі знесенням стін. Але чи знаєте ви, що найважливіший етап – це правильна підготовка документів? Від цього залежить, чи зможете ви втілити свої мрії про ідеальне житло в реальність. Розберемося, як зробити все за правилами.

Сучасний дизайн перепланованої квартири в новобудові: функціональний простір для життя.
Продумане перепланування дозволяє максимально ефективно використовувати кожен квадратний метр квартири.

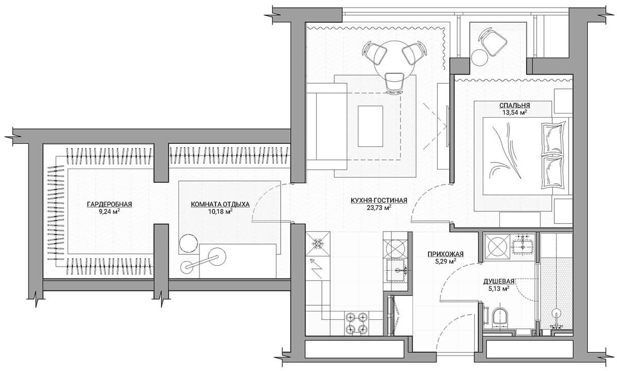
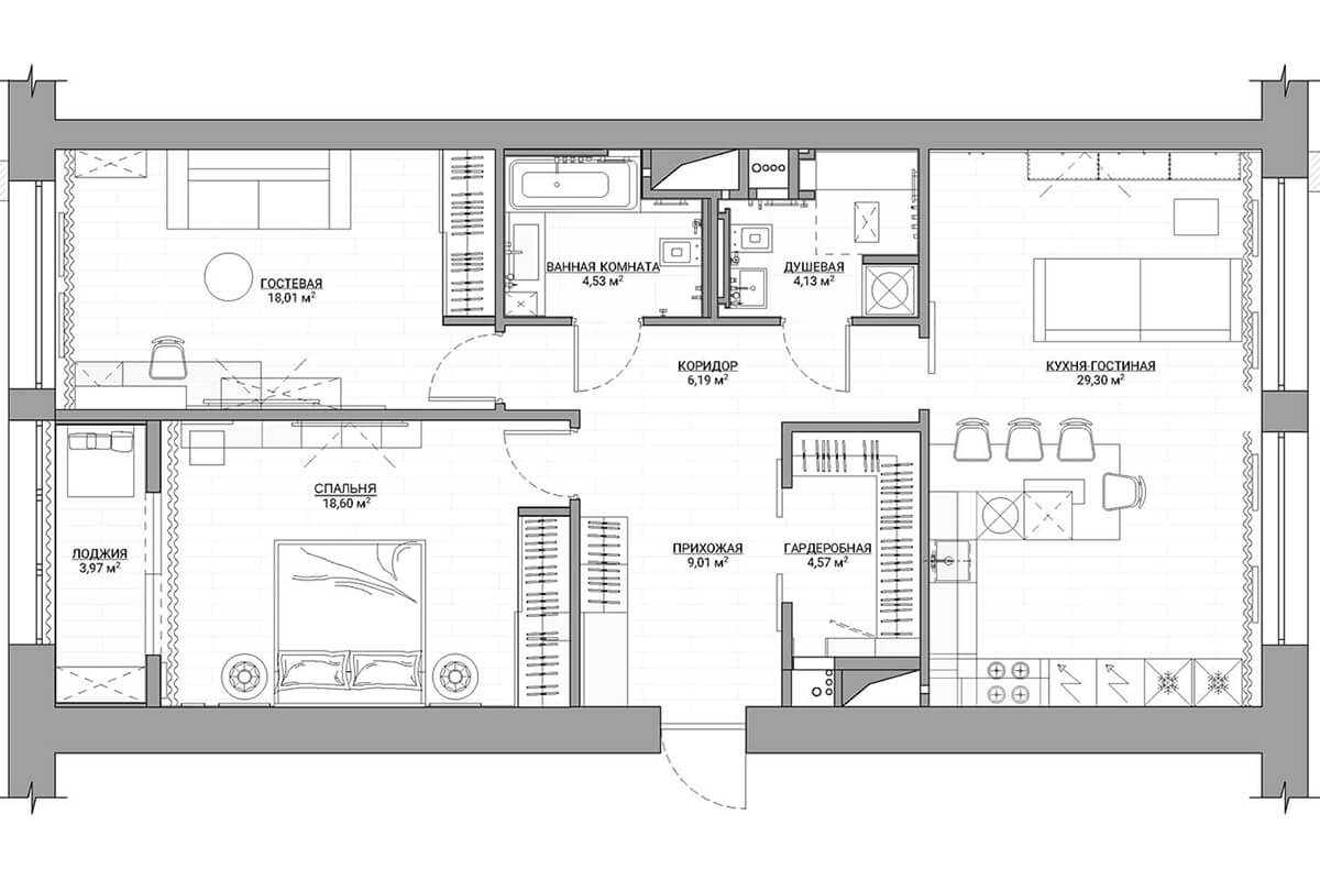
Успішне перепланування квартири – це не тільки естетика, але й ергономіка. Це можливість створити простір, який буде максимально комфортним і функціональним для вас. Багато квартир у новобудовах продаються з відкритим плануванням, що дає велику свободу дій. Однак, більшість квартир все ж мають внутрішні стіни, і їх зміна потребує узгодження.

Якщо ви плануєте змінювати розташування стін, необхідно отримати дозвіл. Це дозволить уникнути проблем з законом та забезпечить безпеку вашого житла. Процес може здатися складним, але з нашою покроковою інструкцією ви зможете пройти його без зайвих зусиль.

Варіант перепланування квартири в новому будинку з урахуванням потреб мешканців 2026.
Індивідуальний підхід до перепланування враховує спосіб життя та вподобання власників.

Перепланування дозволяє адаптувати житло під індивідуальні потреби та стиль життя. Воно дає можливість створити простір, який буде відображати вашу особистість та відповідати вашим звичкам. Це інвестиція у ваш комфорт та задоволення від проживання у власній оселі.

Пам’ятайте, перепланування квартири – це серйозний крок, що вимагає уваги до деталей і знання законодавства. Не нехтуйте цими аспектами, щоб уникнути можливих наслідків самовільних дій. Краще все зробити правильно з самого початку, щоб потім насолоджуватися результатом.

Перепланування квартири в новобудові: світла та простора вітальня після ремонту.
Об’єднання кімнат візуально збільшує простір та створює відчуття свободи.

Об’єднання кімнат – це популярний прийом, який дозволяє створити просторий та світлий інтер’єр. Він особливо актуальний для невеликих квартир, де кожен квадратний метр має значення. Завдяки об’єднанню простору можна створити відчуття свободи та легкості.

Навіщо потрібне перепланування в новій квартирі?

Навіть у сучасних новобудовах, де планування здаються комфортними, власники часто хочуть внести зміни. Це відбувається з різних причин. Типові планування не завжди відповідають індивідуальним потребам та уявленням про ідеальний дім.

Ось декілька причин, чому перепланування може бути необхідним:

  1. Типові планування не завжди ідеальні. Вам може знадобитися простора кухня-вітальня. Або окремий кабінет для роботи, або велика гардеробна кімната. Перепланування створює квартиру, що підходить саме вам.
  2. Помилки забудовників. Іноді забудовники допускають помилки в плануванні. Наприклад, незручне розташування кімнат. Або неефективне використання площі. Перепланування може виправити це.
  3. Збільшення вартості квартири. Унікальне планування підвищує ціну квартири. Це особливо важливо для апартаментів. Оригінальний дизайн створює “вау-ефект”, що збільшує вартість.
Перепланування в новобудові 2026: зручна гардеробна кімната для зберігання речей.
Грамотне планування дозволяє виділити окрему гардеробну, звільнивши місце в інших кімнатах.

Організація гардеробної кімнати – це чудовий спосіб звільнити простір від зайвих шаф та комодів. Вона дозволяє зручно розмістити всі ваші речі та підтримувати порядок у домі. Це особливо актуально для тих, хто цінує мінімалізм та функціональність.

Перепланування – це інвестиція у ваш комфорт. Це також спосіб збільшити вартість вашої нерухомості. Правильно спланований простір робить квартиру більш привабливою для потенційних покупців. Тому варто розглянути перепланування як вигідну інвестицію.

Сучасна ванна кімната після перепланування квартири в новобудові 2026 року.
Перепланування ванної кімнати робить її більш функціональною та естетично привабливою.

Зміна планування ванної кімнати дозволяє встановити сучасну сантехніку та збільшити комфорт. Це може бути розширення простору, заміна ванни на душову кабіну або встановлення додаткових меблів. Головне – створити функціональний та зручний простір для релаксації.

З чого почати: покрокова інструкція

Перепланування повинне відповідати законам. Потрібно пройти узгодження та оформлення. Це може зайняти час. Тому починайте якомога раніше. Відразу після отримання ключів.

Порядок дій:

  1. Отримайте технічний паспорт квартири. Це документ про поточне планування.
  2. Розробіть проект перепланування. Це може зробити ліцензована організація.
  3. Узгодьте проект у відповідних органах. Архітектура, санітарна служба, пожежна інспекція. Все залежить від перепланування.
  4. Виконайте будівельні роботи. Робіть це за затвердженим проектом.
  5. Запросіть комісію для прийняття робіт. Зазвичай все добре. Але готуйтеся до доопрацювань.
  6. Внесіть зміни до технічного паспорту. Там повинно бути нове планування.
Оптимізація простору шляхом перепланування в новобудові 2026: зміна розташування стін.
Знесення або перенесення стін – радикальний, але ефективний спосіб перепланування.

Правильне перепланування допомагає ефективно використовувати кожен квадратний метр. Важливо продумати все до дрібниць, щоб кожен куточок вашої квартири був функціональним та зручним. Це дозволить створити простір, який буде відповідати вашим потребам та стилю життя.

Кожен етап важливий. Не пропускайте жодного кроку. Це допоможе уникнути проблем у майбутньому. Будьте уважні та відповідальні, щоб перепланування пройшло гладко та успішно.

Затишна дитяча кімната після перепланування квартири в новобудові 2026: ідеальний простір.
Перепланування дозволяє створити дитячу кімнату, що відповідає віку та потребам дитини.

Перепланування дитячої кімнати дозволяє створити функціональний та безпечний простір для дитини. Важливо враховувати вік, інтереси та потреби дитини, щоб створити комфортне місце для ігор, навчання та відпочинку. Використовуйте екологічно чисті матеріали та безпечні меблі.

Пам’ятайте: самовільне перепланування може призвести до штрафів. Можливо, доведеться повернути квартиру до початкового стану.

Проект перепланування квартири в новобудові з новими комунікаціями та зручним розташуванням меблів 2026.
Планування комунікацій – важливий етап перепланування, що потребує професійного підходу.

Проект перепланування передбачає перенесення комунікацій для оптимального розміщення меблів. Це вимагає професійного підходу та точних розрахунків. Важливо враховувати всі технічні аспекти, щоб забезпечити безпеку та надійність вашої квартири.

Узгодження перепланування – це відповідальний процес. Але він необхідний для вашого спокою та безпеки. Зробіть все за правилами, щоб уникнути проблем у майбутньому. Це інвестиція у ваше благополуччя та комфорт.

Велика кухня-вітальня з барною стійкою після перепланування в новобудові 2026 року.
Об’єднання кухні та вітальні створює багатофункціональний простір для приготування їжі та відпочинку.

Барна стійка – стильний елемент, що розділяє кухню та вітальню в перепланованому просторі. Вона створює атмосферу затишку та комфорту, а також є функціональним рішенням для невеликих квартир. Барна стійка може бути використана для сніданків, перекусів або як додаткова робоча поверхня.

Корисні поради

Деталізуйте проект максимально ретельно

Складіть детальний план майбутнього інтер’єру. Він повинен відображати всі аспекти. Чим більше деталей ви передбачите, тим менше несподіванок буде під час ремонту. Це заощадить ваш час і гроші.

  • Розташування меблів і техніки. Це важливо для розеток і вимикачів.
  • Точні розміри всіх елементів. Це стосується меблів, перегородок, отворів.
  • Сценарії освітлення для різних зон. Розташування, габарити світильників і система підключення.
  • Особливості прихованих комунікацій. Це важливо при демонтажі перегородок і підключенні техніки.
Сучасний інтер'єр квартири в новобудові після вдалого перепланування у 2026 році.
Перепланування – це можливість створити унікальний інтер’єр, що відображає індивідуальність власника.

Перепланування квартири – це можливість створити житло вашої мрії, враховуючи всі побажання. Ретельно продумайте кожну деталь, щоб отримати простір, який буде відповідати вашому стилю життя та приносити задоволення.

Узгодьте проект перепланування ДО початку робіт

Не починайте будівельні роботи без офіційного дозволу. Деякі компанії пропонують почати відразу. Це дуже ризиковано. Це може призвести до фінансових втрат і затягування термінів.

Під час робіт може статися аварія. Перепланування ще не узаконено. Тобто воно вважається самовільним. Це може призвести до позовів про відшкодування збитків, штрафів і приписів про повернення квартири до початкового стану.

Варіанти перепланування квартири у 2026: узгодження, дизайн інтер'єру та важливі нюанси.
Обміркуйте варіанти перепланування заздалегідь, враховуючи потреби та можливості вашої квартири.

Перепланування в новобудові потребує ретельного планування та узгодження з відповідними органами. Не поспішайте починати роботи, поки не отримаєте всі необхідні дозволи. Це допоможе уникнути проблем у майбутньому.

Пам’ятайте: відповідальність за незаконне перепланування несе власник квартири.

Узгодження перепланування квартири у 2026: етапи, документи та юридичні аспекти.
Узгодження перепланування – важливий етап, що потребує ретельної підготовки документів.

Важливо отримати дозвіл на перепланування, щоб уникнути проблем у майбутньому. Це гарантія вашого спокою та безпеки. Зробіть все за правилами, щоб насолоджуватися результатом.

Рекомендації експертів

Експерти радять звертати увагу на звукоізоляцію. Особливо, якщо ви об’єднуєте кухню з вітальнею. Це допоможе створити комфортний простір для відпочинку. Обирайте матеріали з урахуванням екологічних норм.

Проект перепланування квартири у 2026: дизайн, технічні рішення та візуалізація простору.
Візуалізація проекту допоможе побачити майбутній результат перепланування та внести корективи.

Продуманий проект допоможе реалізувати бажаний дизайн та функціональність простору. Звертайте увагу на сертифікати якості. Це важливо для вашого здоров’я та безпеки.

Реалізація перепланування квартири у 2026: вибір матеріалів та будівельні роботи.
Вибір якісних матеріалів – запорука довговічності та безпеки вашого перепланування.

Вибір якісних матеріалів забезпечить довговічність та безпеку вашого оновленого житла. Не економте на матеріалах, адже від них залежить ваш комфорт та здоров’я.

Ретельно контролюйте хід робіт

  • Регулярно відвідуйте будівельний майданчик. Спілкуйтеся з виконробом. Переконайтеся, що все робиться за проектом.
  • Перевіряйте якість матеріалів. Слідкуйте за дотриманням технологій будівництва.
  • Фотографуйте та знімайте відео всіх етапів. Це буде доказом у разі виникнення суперечок.

Якщо ви не впевнені у своїх знаннях, найміть незалежного технічного фахівця. Він буде контролювати хід робіт і виявляти можливі порушення.

Вплив перепланування на техпаспорт квартири у 2026: внесення змін та актуалізація даних.
Обов’язково внесіть зміни до техпаспорту після завершення перепланування для уникнення проблем.

Не забудьте внести зміни до технічного паспорту після завершення перепланування. Це необхідно для того, щоб ваше житло відповідало всім нормам та правилам.

Факт: вартість перепланування залежить від складності проекту. Також впливає ціна матеріалів і вартість робіт.

Дизайн інтер'єру квартири після перепланування у 2026: сучасні тенденції та функціональність.
Створіть стильний та функціональний інтер’єр після перепланування, враховуючи сучасні тренди.

Перепланування відкриває можливості для створення унікального та функціонального інтер’єру. Пам’ятайте, що успішне перепланування – це результат ретельного планування, професійного виконання та дотримання всіх норм та правил.

Перепланування квартири в новобудові дозволяє створити простір, який відповідає вашим потребам. Важливо, щоб воно було законним і безпечним. Довірте цю роботу професіоналам. Вони зроблять все правильно.

Корисний інсайт від реальних клієнтів: “Не економте на проекті перепланування. Якісний проект заощадить вам час і гроші в майбутньому”.

Вартість перепланування: орієнтовні ціни

Вартість перепланування квартири залежить від багатьох факторів. Це складність проекту, площа квартири, вартість матеріалів і робіт. Точну ціну можна дізнатися тільки після розробки проекту. Ось орієнтовні ціни на деякі послуги станом на лютий 2026 року:

Послуга Вартість (грн) Опис
Технічний паспорт квартири Від 1500 Документ з інформацією про поточне планування.
Проект перепланування Від 5000 Розробка проекту, що відповідає нормам і правилам.
Узгодження проекту Від 3000 Отримання дозволу на перепланування.
Будівельні роботи Від 1000 за м2 Вартість робіт залежить від складності.
Внесення змін до техпаспорту Від 1000 Відображення нового планування в документі.

Майте на увазі, що це лише орієнтовні ціни. Вони можуть змінюватися залежно від регіону та компанії, яка надає послуги. Ретельно вибирайте підрядників і порівнюйте пропозиції.

Увага: деякі роботи можуть вимагати додаткових витрат. Наприклад, якщо потрібно посилити несучі конструкції.

Інсайт від ательє MZ Atelier: Наші технологи помітили, що багато хто забуває про важливість правильного планування освітлення під час перепланування.

Врахуйте принципи золотого перетину при розміщенні світильників для створення гармонійного та комфортного простору.

Пам’ятайте, якісне освітлення не тільки покращує естетику інтер’єру, але й позитивно впливає на ваш емоційний стан.

Якщо плануєте перепланування квартири з нетиповим плануванням, зверніть увагу, що в MZ Atelier ви можете замовити матрац будь-якої форми, навіть круглий чи трапецевидний, щоб ідеально доповнити ваш оновлений інтер’єр.

Ми в MZ Atelier віримо, що сон – це фундамент життя, і пропонуємо рішення для забезпечення максимального комфорту у вашій спальні. Розгляньте наші елітні турецькі колекції Olympia та Artisan, щоб відчути справжню розкіш і турботу про ваш відпочинок.

5/5 - (1 голос)
Перепланування 2026: як створити ідеальний простір законно - 6 - MZ Atelier

Про автора: Matras Sommelier

Matras Sommelier – визнаний експерт у галузі сну та комфорту. З багаторічним досвідом роботи, він глибоко розуміється на впливі матраців та спальних систем на якість відпочинку. Випускник НТУУ КПІ, він присвятив свою кар'єру дослідженню та оптимізації умов для здорового сну. Його знання – запорука вашого комфортного пробудження.

4 думки про “Перепланування 2026: як створити ідеальний простір законно

  1. Наталія каже:

    Ох, ці перепланування… завжди мріяла про кухню-вітальню, але боюся всієї цієї паперової тяганини. Може, краще залишити все як є, щоб спокійніше жити? Але ж як хочеться простору! Треба зважитись, мабуть.

  2. Дмитро каже:

    Я б ще додав, що варто заздалегідь прорахувати вартість всіх робіт і матеріалів. Інакше мрії про ідеальний простір можуть розбитися об реальність кошторису.

  3. Дмитро каже:

    Я завжди думав, що перепланування – це як ремонт у старій машині: почнеш з одного, а закінчиш капіталкою всього! Тепер розумію, що без чіткого плану і паперів нікуди. Треба буде добре все вивчити перед тим, як братися за кувалду.

  4. Марія каже:

    Паперова тяганина лякає, але воно того варте. Живу в старій квартирі, без перепланування ніяк. Головне, щоб потім не було проблем з продажем.

Залишити коментар до Наталія Скасувати коментар

Ваша e-mail адреса не оприлюднюватиметься. Обов’язкові поля позначені *