Чи часто, повертаючись додому після насиченого дня, ви відчуваєте справжнє задоволення від простору, який вас оточує? Чи відповідає він вашим потребам і прагненням, даруючи відчуття гармонії та спокою?
Професійний ремонт квартири за індивідуальним дизайн-проєктом – це не просто заміна оздоблювальних матеріалів. Це інвестиція у ваш комфорт, можливість створити естетичний, функціональний та персоналізований простір, який гармонійно поєднується з вашим унікальним стилем життя. Це простір, де кожна деталь відображає вашу особистість та сприяє вашому благополуччю.
У цій статті ми поділимося з вами реалізованими проєктами, натхненними фотографіями, зробленими в квартирах наших клієнтів після капітального ремонту. Ми розкажемо про важливі аспекти цього процесу та продемонструємо захопливі результати, які перевершують усі очікування.

Створення ідеального інтер’єру – це мистецтво, яке потребує не лише професійних знань, але й тонкого відчуття смаку та розуміння потреб клієнта. Ремонт квартири – це комплексна задача, яка включає в себе безліч етапів, від розробки концепції до фінального оздоблення. Важливо, щоб кожен етап виконувався з максимальною увагою до деталей, адже саме з них складається загальна картина.
Перетворення квартири на вишуканий простір – це не лише питання естетики, а й функціональності. Важливо, щоб кожен елемент інтер’єру був не лише красивим, але й практичним та зручним у використанні. Адже ваш дім – це місце, де ви проводите значну частину свого життя, і він повинен бути максимально комфортним та адаптованим до ваших потреб.
Ціни на ремонт квартир у Києві
Дізнатися орієнтовну вартість ремонту вашої квартири у Києві ви можете, ознайомившись з прикладами реалізованих проєктів у нашому портфоліо. Для кожного проєкту вказана вартість, площа та терміни виконання робіт. Це дозволить вам отримати уявлення про рівень цін та спланувати свій бюджет.

Варто пам’ятати, що ціна ремонту залежить від багатьох факторів, таких як площа квартири, складність проєкту, вартість матеріалів та обсяг робіт. Тому, для отримання точної оцінки, рекомендуємо звернутися до професіоналів, які зможуть врахувати всі ваші побажання та запропонувати оптимальне рішення.
Актуальні ціни на ремонт квартир у 2026 році ви завжди можете знайти на відповідній сторінці нашого сайту. Ми постійно оновлюємо інформацію, щоб ви могли бути в курсі останніх тенденцій та пропозицій. А щоб зробити ваш досвід ще більш приємним, при замовленні ремонту ви отримуєте чудовий бонус – повернення вартості дизайну інтер’єру!
Дизайн інтер’єру у подарунок!
Більше 28 років ми створюємо унікальні інтер’єри для успішних людей, які цінують комфорт та стиль. Наша команда професіоналів готова створити для вас неповторний інтер’єр абсолютно безкоштовно, якщо ви оберете нас для виконання ремонтних робіт. Це чудова можливість заощадити кошти та отримати якісний ремонт, розроблений з урахуванням ваших індивідуальних потреб та вподобань.
Наша команда дизайнерів – це справжні майстри своєї справи, які мають великий досвід у створенні інтер’єрів різних стилів та напрямків. Ми завжди стежимо за останніми тенденціями в дизайні та використовуємо тільки найкращі матеріали та технології. З нами ви можете бути впевнені, що ваша квартира буде виглядати стильно, сучасно та функціонально.
Зверніть увагу на те, що MZ Atelier також може запропонувати вам індивідуальні рішення. Наші майстри створять матраци нестандартних розмірів, наприклад, для кімнат з нестандартною геометрією. Трапецевидні або круглі матраци – для нас немає нічого неможливого.
Залиште заявку на сайті, і наші менеджери зв’яжуться з вами для уточнення деталей та обговорення проєкту.
Ремонт під ключ з гарантією
Наша компанія виконує ремонт квартир у Києві та Київській області, пропонуючи широкий спектр послуг, щоб задовольнити будь-які ваші потреби та побажання:
- Під ключ – ми беремо на себе всі етапи ремонту, від заміни комунікацій та чорнової обробки до комплектації інтер’єру меблями, обладнанням, текстилем та декором. Вам не потрібно турбуватися ні про що – ми все зробимо за вас.
- З розробкою дизайн-проєкту – ми пропонуємо послугу розробки індивідуального дизайн-проєкту, який буде повністю відповідати вашому стилю життя та смаковим уподобанням. При замовленні дизайну та ремонту одночасно ви отримаєте проєкт безкоштовно.
- З переплануванням (за наявності можливості та законності) – ми допоможемо вам узгодити перепланування вашої квартири в установленому порядку, щоб максимально оптимізувати простір та зробити його більш функціональним.
- З оформленням страховки – ми пропонуємо послугу страхування об’єкта на час проведення ремонтно-будівельних робіт, щоб захистити вас від непередбачених обставин.
- З гарантією – ми надаємо п’ятирічну гарантію на всі виконані роботи, а гарантійні зобов’язання компанії детально прописуються в договорі, щоб ви могли бути впевнені у якості та надійності наших послуг.

Ми розуміємо, наскільки важливо для вас, щоб ремонт був виконаний якісно та вчасно. Тому ми ретельно плануємо кожен етап робіт та використовуємо тільки найкращі матеріали та обладнання. Наша команда складається з досвідчених професіоналів, які знають свою справу та завжди готові прийти на допомогу.
Зверніть увагу на колекції Elite Turkish від MZ Atelier, особливо якщо вам потрібен максимальний комфорт та розкіш. Olympia та Artisan – це вибір тих, хто цінує бездоганну якість та неперевершений дизайн.

Компанія “Віра-АртСтрой” працює як в новобудовах, так і в старому житловому фонді, укладаючи з клієнтами офіційний договір, в якому вказуються точні терміни ремонту та гарантійні зобов’язання. Усі деталі ремонту обговорюються та узгоджуються заздалегідь, щоб у результаті ви отримали інтер’єр, який повністю відповідає вашим очікуванням.
Зразок квартири після ремонту від «Віра-АртСтрой»

Представляємо вашій увазі приклад сучасного ремонту квартири, виконаного нашою командою. Зверніть увагу на гармонійне поєднання кольорів, продумане освітлення та якісні матеріали. Кожна деталь інтер’єру підкреслює стиль та індивідуальність власника.
Ми пишаємося тим, що можемо створювати такі чудові простори для наших клієнтів. Адже наш головний пріоритет – це задоволення потреб та побажань кожного замовника. Ми завжди готові вислухати ваші ідеї та запропонувати найкращі рішення для вашого дому.

На березі річки. Фото Ремонт 3-кімнатної квартири в ЖК «Серце столиці»

Ця трикімнатна квартира в ЖК “Серце столиці” – чудовий приклад того, як можна створити стильний та функціональний інтер’єр, використовуючи сучасні матеріали та технології. Зверніть увагу на продумане планування, яке дозволяє максимально ефективно використовувати кожен квадратний метр простору.

Однією з головних особливостей цього проєкту є використання природних матеріалів, таких як дерево та камінь. Вони додають інтер’єру тепла та затишку, створюючи атмосферу гармонії та спокою.

Освітлення відіграє важливу роль у створенні атмосфери в будь-якому інтер’єрі. У цій квартирі використано кілька рівнів освітлення, що дозволяє створювати різні настрої залежно від часу доби та потреб мешканців.

Меблі та декор підібрані з урахуванням загального стилю інтер’єру. Вони не лише красиві, але й функціональні та зручні у використанні.

Кожна деталь інтер’єру продумана до дрібниць, що створює відчуття гармонії та завершеності. У цій квартирі приємно знаходитися та проводити час з родиною та друзями.

На березі річки. Фото Ремонт 3-кімнатної квартири в ЖК «Серце столиці».
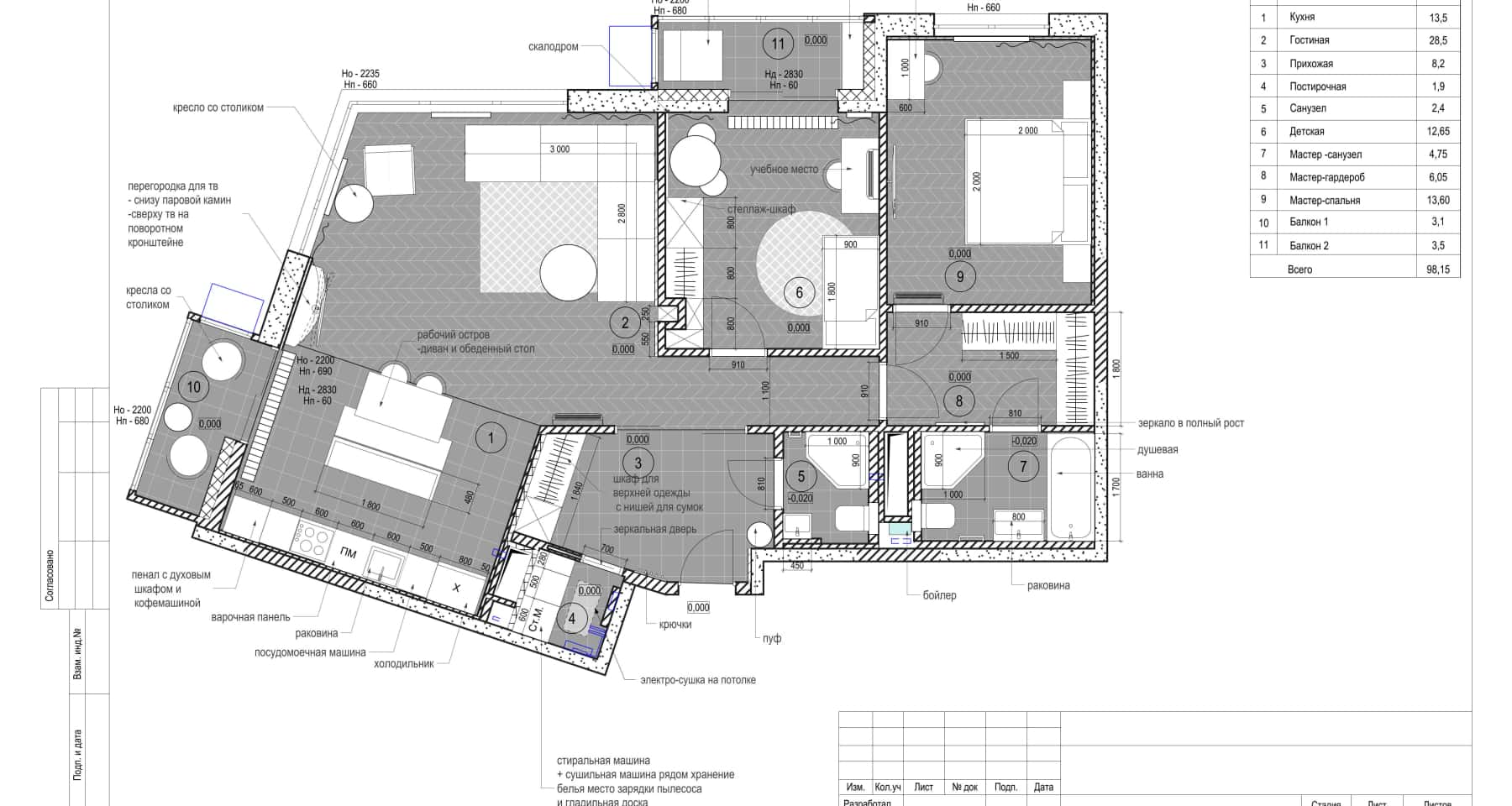
Професійний ремонт квартир від компанії «Віра-АртСтрой» — комплексна послуга, що передбачає проведення ремонтно-будівельних робіт у всіх приміщеннях та реалізацію розроблених дизайнерами планувальних, інженерних та декораторських рішень. На фотографіях нижче можна побачити, як виглядає вже відремонтована квартира площею 98 м², розташована в ЖК «Серце столиці».
Прихожа

У вхідній зоні, оформленій у світлих тонах, зробили вбудовану шафу з фасадами в тон стін. А роль великого дзеркала відіграють дзеркальні двері, що ведуть у господарську кімнату.
Чи знали ви, що правильно підібране освітлення в прихожій може візуально збільшити простір та створити відчуття затишку? Світлі тони та дзеркальні поверхні також сприяють розширенню простору.
Інсайт від Ательє: Наші технологи помітили, що використання теплих відтінків у прихожій створює відчуття гостинності та затишку. Рекомендуємо використовувати світильники з м’яким розсіяним світлом, щоб створити приємну атмосферу вже з порога. Також зверніть увагу на принцип золотого перетину при розміщенні декоративних елементів – це додасть інтер’єру гармонії та елегантності.
Будьте обережні з використанням надто яскравих кольорів у прихожій, оскільки вони можуть швидко набриднути та створити відчуття дискомфорту. Краще віддати перевагу нейтральним тонам та додати кілька яскравих акцентів.
Вітальня – це серце будь-якого дому, місце, де збирається вся родина та гості. Тому важливо створити тут атмосферу затишку та комфорту, де кожен буде відчувати себе невимушено та розслаблено. У цій вітальні використано м’які меблі, теплий текстиль та приємне освітлення, що створює ідеальну атмосферу для відпочинку та спілкування.
Кухня – це не лише місце для приготування їжі, але й важлива частина дому, де проводять час з родиною та друзями. Тому важливо, щоб кухня була не лише функціональною, але й красивою та затишною. У цій кухні використано сучасні матеріали та технології, що дозволяють готувати з комфортом та задоволенням.
Висновок
Ремонт квартири – це відповідальний та важливий крок, який потребує професійного підходу та ретельного планування. Звернувшись до компанії «Віра-АртСтрой», ви можете бути впевнені, що ваш ремонт буде виконаний якісно, вчасно та з урахуванням усіх ваших побажань. Ми допоможемо вам створити простір, про який ви завжди мріяли.
Нехай ваш дім стане місцем, де ви будете відчувати себе щасливими та натхненними! Інвестуйте у свій комфорт та гармонію – і ви побачите, як зміниться ваше життя на краще.
Ательє MZ Atelier бажає вам спокійних ночей та бадьорих ранків! Пам’ятайте, що здоровий сон – це фундамент вашого благополуччя. Ми завжди раді допомогти вам створити ідеальні умови для відпочинку та відновлення.

Прочитав і задумався. Може, дійсно, пора вже не тільки про залізо в комп’ютері думати, а й про затишок навколо? Треба глянути ідеї, може й надихнусь на щось корисне вдома.
Нарешті зрозумів, чому так не люблю приходити додому! Квартира – просто відображення моєї втоми, а має ж надихати! Все, починаю збирати ідеї для ремонту, щоб аж летіти хотілося у свою оновлену фортецю! )
Оце так прокачали хату! Я б теж хотів, щоб мій дім виглядав як з обкладинки журналу! Треба серйозно задуматись про ремонт! Може, хоч шпалери переклею? Надихнули!
Мрії мріями, але головне, щоб за красою ховалася практичність. Інакше це буде не дім мрії, а музей, де страшно до чогось доторкнутись. Хочеться затишку, а не виставкового зразка.